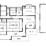
3,800万円
3LDK 117.79m²
(地図)(間取)
物件の詳細を見る
価格
3,800万円
中古戸建
間取
3LDK
所在地
群馬県伊勢崎市 伊勢崎市境上渕名  
交通
東武伊勢崎線剛志駅 徒歩3800m
築年月 2009/6 構造 木造
階建 地上 1階 部屋階数 1階
面積 建物117.79m²【35.6坪】
土地 508.58m²【153.8坪】
建蔽率/容積率 70% / 200%
3,780万円
5LDK 170.17m²
(間取)
物件の詳細を見る
価格
3,780万円
中古戸建
間取
5LDK
所在地
群馬県伊勢崎市 田中島  
交通
JR両毛線伊勢崎駅 徒歩3200m
築年月 1994/5 構造 木造
階建 地上 2階 部屋階数 2階
面積 建物170.17m²【51.4坪】
土地 383.65m²【116坪】
建蔽率/容積率 40% / 80%
2,780万円
 370.74m²
(間取)(外観)
物件の詳細を見る
価格
2,780万円
店舗付住宅
所在地
群馬県伊勢崎市 今泉町二丁目  
交通
JR両毛線伊勢崎駅 徒歩2400m
築年月 1979/8 構造 RC
面積 建物370.74m²【112.1坪】
土地 333.00m²【100.7坪】
建蔽率/容積率 200% / %
2,300万円
3LDK 79.48m²
(間取)(外観)
物件の詳細を見る
価格
2,300万円
中古戸建
間取
3LDK
所在地
群馬県伊勢崎市 宮子町  
交通
JR両毛線駒形駅 徒歩3100m
築年月 構造 木造
階建 地上 2階 部屋階数 2階
面積 建物79.48m²【24坪】
土地 257.60m²【77.9坪】
建蔽率/容積率 60% / 200%
2,200万円
4LDK 119.65m²
(間取)(間取)
物件の詳細を見る
価格
2,200万円
中古戸建
間取
4LDK
所在地
群馬県伊勢崎市 連取町  
交通
JR両毛線伊勢崎駅 徒歩2700m
築年月 2014/02 構造 木造
階建 地上 2階 部屋階数 2階
面積 建物119.65m²【36.1坪】
土地 227.98m²【68.9坪】
建蔽率/容積率 50% / 100%
1,200万円
4LDK 111.92m²
(間取)(外観)
物件の詳細を見る
価格
1,200万円
中古戸建
間取
4LDK
所在地
群馬県伊勢崎市 波志江町  
交通
JR両毛線伊勢崎駅 徒歩2100m
築年月 1982/8/5 構造 軽量鉄骨
階建 地上 2階 部屋階数 2階
面積 建物111.92m²【33.8坪】
土地 192.02m²【58坪】
建蔽率/容積率 40% / 80%
900万円
3DK 115.93m²
物件の詳細を見る
価格
900万円
店舗付住宅
間取
3DK
所在地
群馬県桐生市 相生町五丁目  
交通
わたらせ渓谷鐵道相老駅 徒歩1000m
築年月 1990/4/22 構造 木造
階建 地上 1階 部屋階数 1階
面積 建物115.93m²【35坪】
土地 368.73m²【111.5坪】
建蔽率/容積率 60% / 200%
600万円
4LK 98.52m²
(外観)
物件の詳細を見る
価格
600万円
中古戸建
間取
4LK
所在地
埼玉県児玉郡上里町 七本木  
交通
JR高崎線神保原駅 徒歩1700m
築年月 1991/06 構造 木造
階建 地上 2階 部屋階数 2階
面積 建物98.52m²【29.8坪】
土地 150.10m²【45.4坪】
建蔽率/容積率 60% / 200%
400万円
 81.81m²
物件の詳細を見る
価格
400万円
中古戸建
所在地
群馬県伊勢崎市 茂呂町二丁目  
交通
東武伊勢崎線新伊勢崎駅 徒歩2100m
JR両毛線伊勢崎駅 徒歩3400m
築年月 1953/ 構造 木造
階建 地上 1階 部屋階数
面積 建物81.81m²【24.7坪】
土地 232.45m²【70.3坪】
建蔽率/容積率 60% / 200%
298万円
 168.33m²
(間取)(外観)
物件の詳細を見る
価格
298万円
売地
所在地
群馬県伊勢崎市 太田町563-8  
交通
JR両毛線伊勢崎駅 徒歩12分
築年月 1975/9 構造 木造
階建 地上 1階 部屋階数
面積 建物69.56m²【21坪】
土地 168.33m²【50.9坪】
建蔽率/容積率 60% / 200%

前のページにもどる